00件
最近見た物件
00件
検討リスト
プラス不動産販売株式会社 > 福岡市南区柏原3丁目 1号棟(全1棟)【仲介手数料無料・0円】
◎オール電化◎オール浄水◎2階の全居室が6帖以上と広々◎オールフローリング◎収納豊富◎全窓網戸付き◎フラット35S対応◎
※写真や図と実際の現状とが異なる場合は現状を優先させていただきます。
画像をクリックして視点を操作











(※元利均等方式 金利5.00%まで ※返済年数5~50年まで入力できます)
(※ボーナスは年2回で計算しています。1000万円まで入力できます)
(※物件購入時、その他諸費用が発生する場合がございます)
| 所在地 | 福岡県福岡市南区柏原3丁目16-3 | ||
|---|---|---|---|
| 交通 | |||
| 間取り/詳細 |
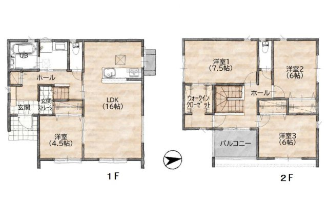
4LDK/ LDK 16.0帖/洋室 4.5帖/洋室 7.5帖/洋室 6.0帖/洋室 6.0帖 |
建物面積(坪数) | 106.45㎡(32.2坪) |
| 価格 | 3,498万円 | ||
| 駐車場/月額料金 | 有(2台)/0円 駐車可能車両は車種によります。 | ||
| 土地の敷金/保証金 | -/- | 借地料/借地期間 | -/- |
| 土地権利 | 所有権 | 土地面積(坪数) | 179.69㎡(54.35坪) |
| 傾斜地部分面積 | - | 路地状敷地 | - |
| 私道負担面積/セットバック | -/無 | 高圧線下面積 | - |
| 地目/地勢 | 宅地/- | 接道状況 | 一方(東 公道 4.4m) |
| 建ぺい率/容積率 | 50%/80% | 用途地域 | 第一種低層住居専用 |
| 都市計画 | 市街化区域 | 種別/構造 | 新築一戸建/木造 |
| 階建 | 2階建 | 築年月(築年数) | 2025年 8月 (新築) |
| 総区画数/販売区画数 | 1区画/1区画 | 向き | 南 |
| 現況 | 完成済み | その他の法令上の制限 | - |
| 取引態様/引渡時期 | 仲介/即時 | 建築確認番号 | 第R07確認建築福住セ本01275号 |
| 物件番号 | 94667754 | 取引条件の有効期限 | 2026年02月01日 |
| 設備条件 |
|
||
| 備考 |
当社でご購入のお客様は仲介手数料無料でご案内できますので、こちらの物件ですと諸費用に127万円程の差がでます。ういたお金で家具・家電を揃えるのもよし、カーポートや欲しい設備のオプション工事に使うもよしです。まずは一度物件を見学されてみませんか。もちろんこちら以外の広告非掲載物件も仲介手数料ゼロでご案内致します。是非、お気軽にお問合せ下さいませ。 |
||
| 取扱会社 |
|
||
| QRコード |
このQRコードを読み取ることで、スマホでも物件情報を確認できます。 |
||
※地図上に表示される物件の位置は付近住所に所在することを表すものであり、実際の物件所在地とは異なる場合がございます。
福岡市南区柏原3丁目 1号棟(全1棟)【仲介手数料無料・0円】に関するこだわり条件から探す
福岡市南区以外の市区町村から探す