00件
最近見た物件
00件
検討リスト
プラス不動産販売株式会社 > 春日市天神山4丁目1期 1号棟(全1棟)【仲介手数料無料・0円】
◎敷地約63坪◎ゆとりの敷地で駐車場並列3台可◎収納豊富な間取り◎生活に必要な施設も充実◎建物34坪◎ウォークインクローゼット◎フラット35S対応◎
※写真や図と実際の現状とが異なる場合は現状を優先させていただきます。
画像をクリックして視点を操作











(※元利均等方式 金利5.00%まで ※返済年数5~50年まで入力できます)
(※ボーナスは年2回で計算しています。1000万円まで入力できます)
(※物件購入時、その他諸費用が発生する場合がございます)
| 所在地 | 福岡県春日市天神山4丁目148 | ||
|---|---|---|---|
| 交通 | |||
| 間取り/詳細 |
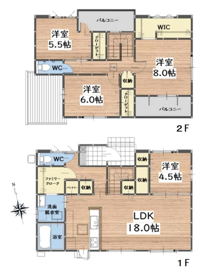
4LDK+1S(納戸)/ LDK 18.0帖/洋室 4.5帖/S 2.5帖/洋室 8.0帖/洋室 6.0帖/洋室 5.5帖 |
建物面積(坪数) | 114.02㎡(34.49坪) |
| 価格 | 4,598万円 | ||
| 駐車場/月額料金 | 有(3台)/0円 駐車可能車両は車種によります。 | ||
| 土地の敷金/保証金 | -/- | 借地料/借地期間 | -/- |
| 土地権利 | 所有権 | 土地面積(坪数) | 208.55㎡(63.08坪) |
| 傾斜地部分面積 | - | 路地状敷地 | - |
| 私道負担面積/セットバック | -/無 | 高圧線下面積 | - |
| 地目/地勢 | 宅地/- | 接道状況 | 一方(北 公道 4.1m) |
| 建ぺい率/容積率 | 50%/80% | 用途地域 | 第一種低層住居専用 |
| 都市計画 | 市街化区域 | 種別/構造 | 新築一戸建/木造 |
| 階建 | 2階建 | 築年月(築年数) | 2026年 1月 (予定) |
| 総区画数/販売区画数 | 1区画/1区画 | 向き | 南 |
| 現況 | 未完成 | その他の法令上の制限 | - |
| 取引態様/引渡時期 | 仲介/2026年1月下旬 | 建築確認番号 | 第KJH25-01172-1 号 |
| 物件番号 | 98109640 | 取引条件の有効期限 | 2025年11月27日 |
| 設備条件 |
|
||
| 備考 | 当社でご購入のお客様は仲介手数料無料でご案内できますので、こちらの物件ですと諸費用に158万円程の差がでます。ういたお金で家具・家電を揃えるのもよし、カーポートや欲しい設備のオプション工事に使うもよしです。まずは一度物件を見学されてみませんか。もちろんこちら以外の広告非掲載物件も仲介手数料ゼロでご案内致します。 | ||
| 取扱会社 |
|
||
| QRコード |
このQRコードを読み取ることで、スマホでも物件情報を確認できます。 |
||
※地図上に表示される物件の位置は付近住所に所在することを表すものであり、実際の物件所在地とは異なる場合がございます。
春日市天神山4丁目1期 1号棟(全1棟)【仲介手数料無料・0円】に関するこだわり条件から探す
春日市以外の市区町村から探す